Cookie Policy: This site uses cookies to store information on your computer. Read more
Sign up to our mailing list for updates on new properties on the market.
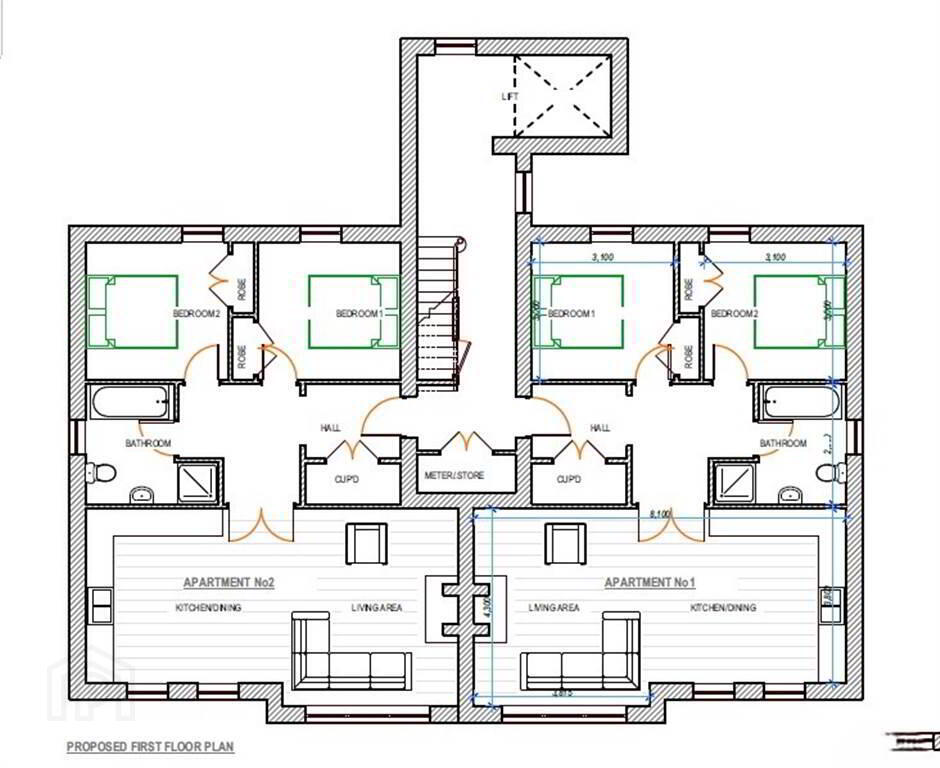
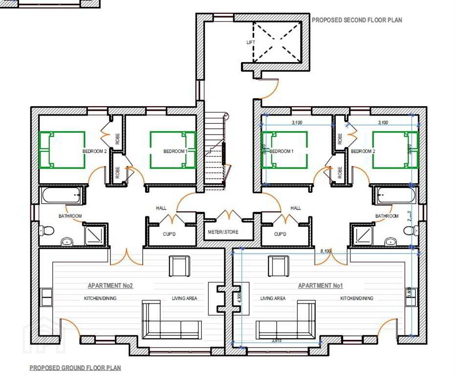
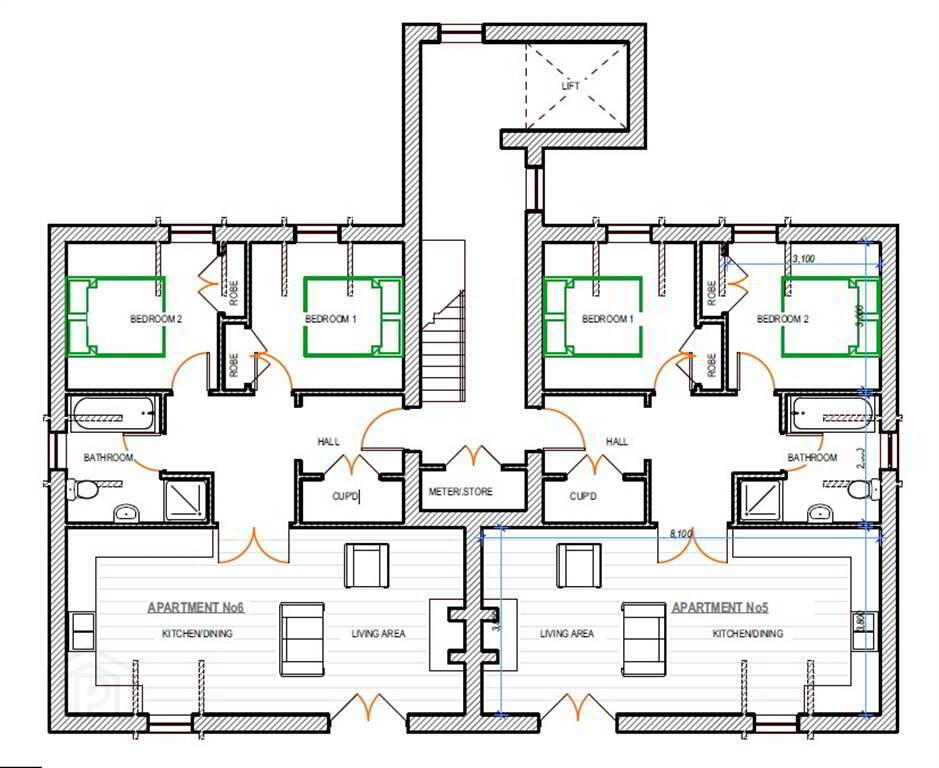
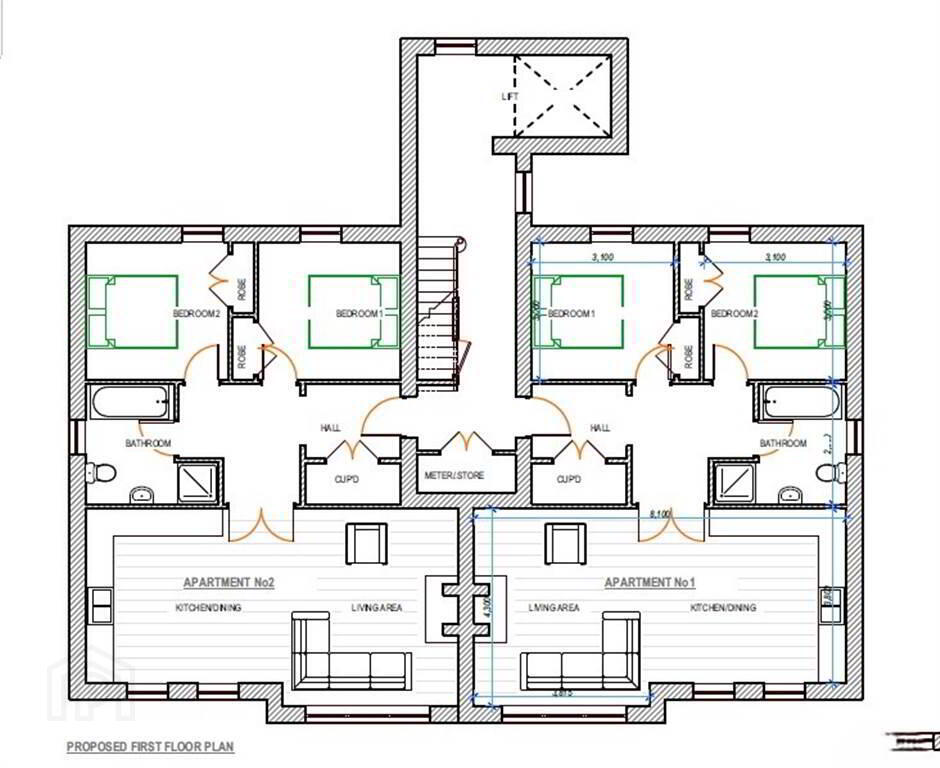
| Address | Superb Apartment Development Site, 16-18 Belfast Road Ballygowan, BT23 6HU |
|---|---|
| Price | Offers around £235,000 |
| Land type | Site |
| Status | For sale |
Ballygowan Square, Ballygowan